About
Contact
Featured Projects
Architecture
Interior Design
Set Design
Artwork
About
Contact
Featured Projects
Architecture
Interior Design
Set Design
Artwork
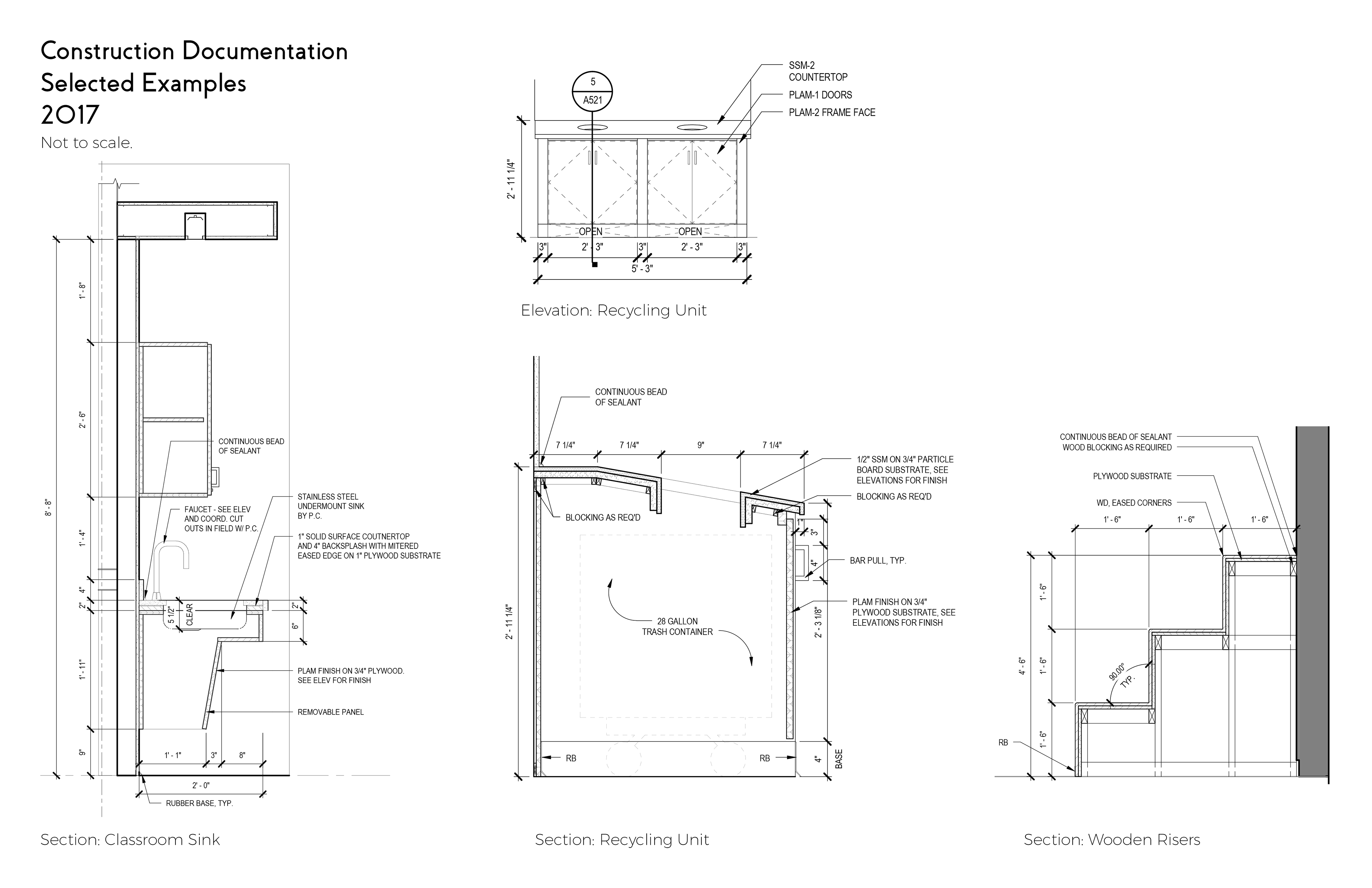
Construction Docs Samples
Miscellaneous examples of detail drawings done over the last year.
↑
Back to Top